Logo
Contact
15a, Blvd.Grande-Duchesse Charlotte
L-1331 Luxembourg
T 00352 / 27 28 20 10
M 00352 / 621 647 185
tom@leufen-architecte.lu
www.leufen-architecte.lu
Domaines d'activité
nouvelle construction
extension
aménagement et rénovation
études d’urbanisme
privé et publique
Share this office
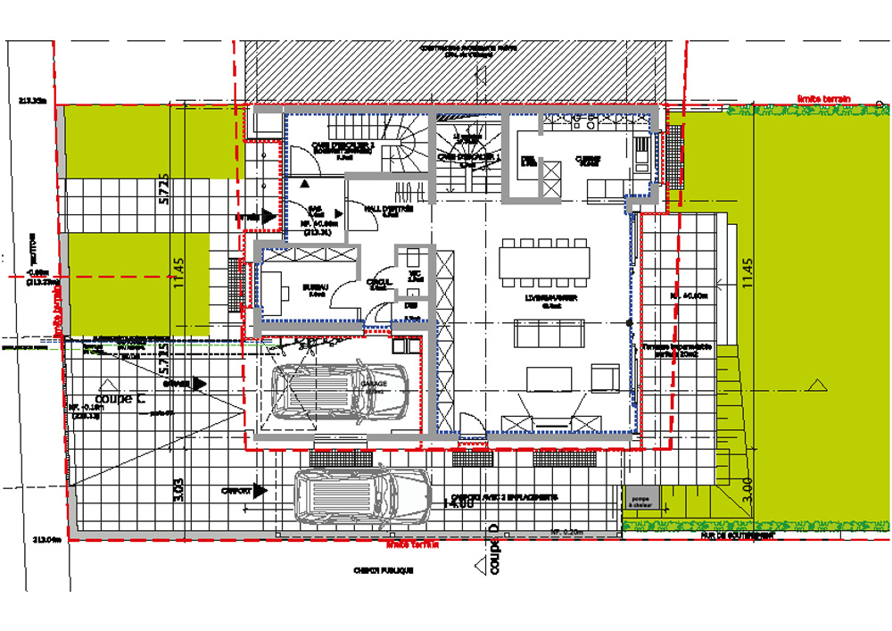
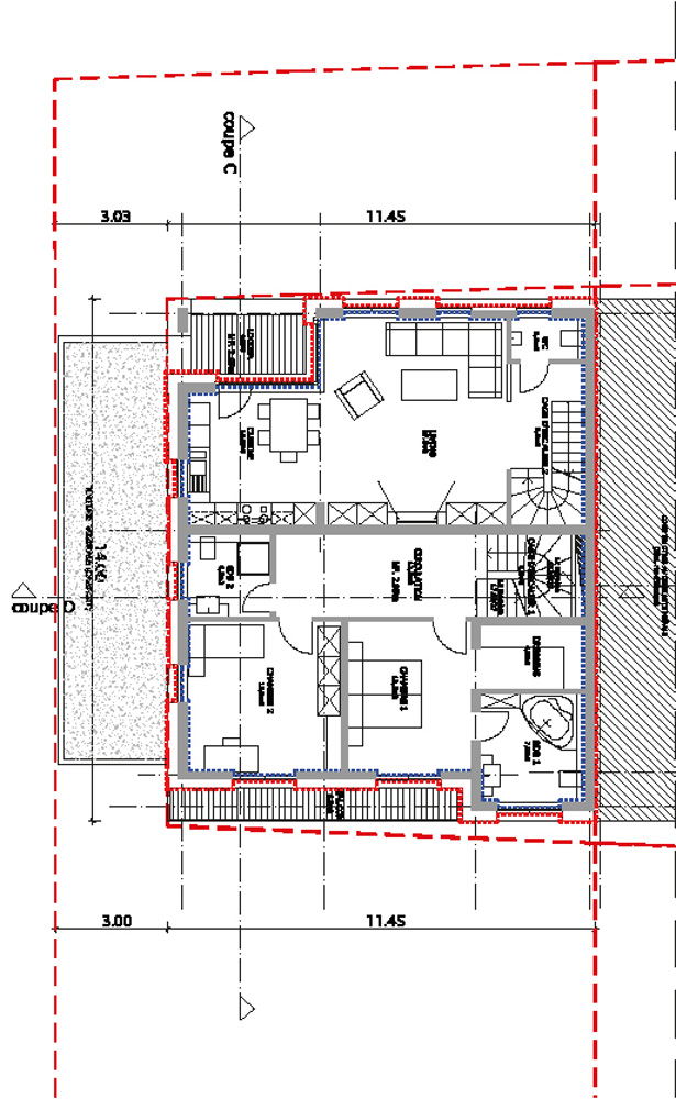
1 Mondorf, rte. d‘Ellange, maison avec logement integré (en construction en 2025)
a) vues en plan: rez-de-chaussée + 1er étage
b) facade jardin
c) situation 2025 (en construction)
ancienne situation
Canach, rue d‘Oetrange, aménagement et extension d‘un petit villa (en construction en 2025)
vue vers jardin
ancienne situation
Luxembourg-Bonnevoie, rue Pierre Krier: extension living
Localisation
1 Mondorf, rte. d‘Ellange, maison avec logement integré (en construction en 2025)
a) vues en plan: rez-de-chaussée + 1er étage
b) facade jardin
c) situation 2025 (en construction)
ancienne situation
Canach, rue d‘Oetrange, aménagement et extension d‘un petit villa (en construction en 2025)
vue vers jardin
ancienne situation
Luxembourg-Bonnevoie, rue Pierre Krier: extension living