Logo
Contact
5, Tunnelstrooss
L-9164 Lipperscheid
Tél. : +352 / 46.73.07-1
Fax. : +352 / 46.73.08
E-mail : secretariat@scaht.eu
www.scaht.eu
Share this office
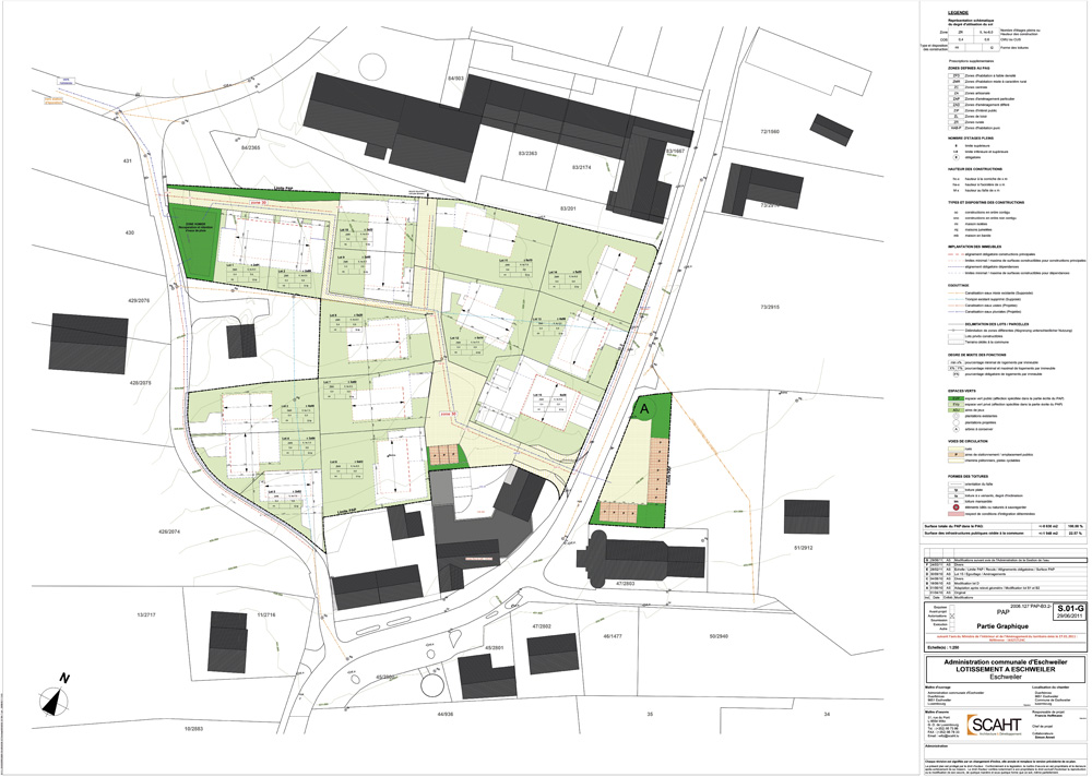
1 PAP lotissement 13 maison à Eschweiler
(Luxembourg)
2 Requalification du centre de la commune de
Bourscheid (Luxembourg)
3 PAP lotissement 13 logements à Michelau
(Luxembourg)
Localisation
1 PAP lotissement 13 maison à Eschweiler
(Luxembourg)
2 Requalification du centre de la commune de
Bourscheid (Luxembourg)
3 PAP lotissement 13 logements à Michelau
(Luxembourg)