guideoai.lu is loading...

FORMA ARCHITECTES SARL

Contact

1, Montée de Clausen,
L-1343 LUXEMBOURG

 

22, Schaffmill,
L-6778 Grevenmacher

T 00352 / 2625301

info@forma.lu
www.forma.lu

Administration Direction

Jean-Claude WELTER associé gérant diplôme. ing.-arch. UIBK

 

Guittou MULLER associé gérant diplôme. ing.-arch. UIBK

Laury MERSCH associée gérante diplôme. ing.-arch. FH

Maurice BLEY associé gérant


Historique

Constitution de la société Forma architectes en
octobre 2023

 

Forma architectes résulte de la fusion des bureaux WeB architectes et urbanisme de Grevenmacher et G+P Muller architectes de Luxembourg-Ville. Le bureau WeB était fondé en 2004 et G+P Muller en 1966.

Effectif

16 architectes

 

1 architecte d’intérieur

2 techniciens en génie civil

2 dessinateurs

1 conseiller en énergie

1 administration

1 apprentie

Domaines d'activité

Architecture

 

Urbanisme et aménagement du territoire

Aménagement intérieur, design

Conception écologique

Rénovation, transformation, restauration

Project management

Share this office
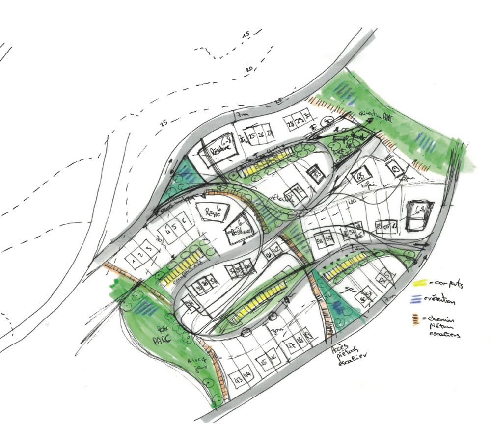
public://import2026/images/IMG1_forma-architectes-up-11395_projet-fcat_opt.jpg 1 Projet d‘aménagment FCAT 2023 à Wiltz
 


 


 


 


 


 

Localisation
public://import2026/images/IMG1_forma-architectes-up-11395_projet-fcat_opt.jpg 1 Projet d‘aménagment FCAT 2023 à Wiltz