guideoai.lu is loading...

FABECK ARCHITECTES SARL

Contact

1, rue du Château
L-8385 KOERICH

 

T 00352 / 26 30 80 1
F 00352 / 26 30 54 81

mail@fabeckarchitectes.lu
www.fabeckarchitectes.lu

Administration Direction

Tatiana FABECK, architecte gérante

 

Jens LETZEL, architecte-associé

Frédéric SOLD, architecte-associé

Historique

1996 création du bureau Tatiana Fabeck Architecte

 

2012 constitution de la société Fabeck Architectes

2016 concepteur certifié Maison Passive

Effectif

16 architectes

 

3 architectes-urbanistes

2 architectes d’intérieur

1 BIM coordinateur

3 dessinateurs/techniciens

1 office manager

1 assistante de direction

Domaines d'activité

architecture

 

urbanisme

architecture d’intérieur, design

rénovation, réhabilitation

études de faisabilité

élaboration de plans d’aménagement particuliers

Share this office
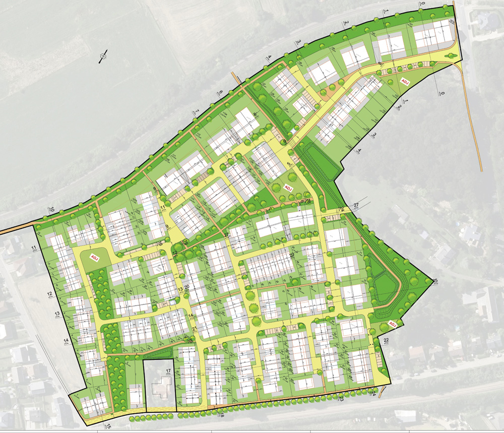
public://import2026/images/U.1_Ensemble_urbain_mixte_Nei_Hollerich_Ouest_opt.jpg 1-4 Ensemble urbain mixte Nei Hollerich Ouest
En association avec BFF architectes 
Lauréat concours d’architecture et d’urbanisme
Lot 3.1 + 3.2, Fonds de compensation et Ville de Luxembourg, Hollerich
 


 


 


 

5	PAP ‘‘Faïencerie’’ site Villeroy & Boch
Villeroy & Boch S.à.r.l.
Rollingergrund Premium Properties S.à.r.l., Ville de Luxembourg 5 PAP ‘‘Faïencerie’’ site Villeroy & Boch
Villeroy & Boch S.à.r.l.
Rollingergrund Premium Properties S.à.r.l., Ville de Luxembourg
 

6-7	Remise en valeur du site Mansfeld et des
vestiges à Clausen
Concours
Administration Communale de la Ville de Luxembourg Clausen 6-7 Remise en valeur du site Mansfeld et des
vestiges à Clausen
Concours
Administration Communale de la Ville de Luxembourg Clausen
 


 

8	PAP”Hiel” à Moutfort
En collaboration avec Best ingénieurs-conseils
Kuhn S.A.
Moutfort 8 PAP”Hiel” à Moutfort
En collaboration avec Best ingénieurs-conseils
Kuhn S.A.
Moutfort
 

9	Etude architecturale et urbanistique pour la réalisation des écoles fondamentales du Laangfur
Administration des bâtiments publics et Ville de Luxembourg, Kirchberg 9 Etude architecturale et urbanistique pour la réalisation des écoles fondamentales du Laangfur
Administration des bâtiments publics et Ville de Luxembourg, Kirchberg
 

10	PAP An der ‘‘Soibelkaul’’
BPI et ION, Dudelange 10 PAP An der ‘‘Soibelkaul’’
BPI et ION, Dudelange
 

11	Maisons/résidences, rue Sainte-Anne et rue de l’église à Wellenstein
Lauréat concours
Fonds du logement, Schengen 11 Maisons/résidences, rue Sainte-Anne et rue de l’église à Wellenstein
Lauréat concours
Fonds du logement, Schengen
 

Localisation
public://import2026/images/U.1_Ensemble_urbain_mixte_Nei_Hollerich_Ouest_opt.jpg 1-4 Ensemble urbain mixte Nei Hollerich Ouest
En association avec BFF architectes 
Lauréat concours d’architecture et d’urbanisme
Lot 3.1 + 3.2, Fonds de compensation et Ville de Luxembourg, Hollerich
 


 


 


 

5	PAP ‘‘Faïencerie’’ site Villeroy & Boch
Villeroy & Boch S.à.r.l.
Rollingergrund Premium Properties S.à.r.l., Ville de Luxembourg 5 PAP ‘‘Faïencerie’’ site Villeroy & Boch
Villeroy & Boch S.à.r.l.
Rollingergrund Premium Properties S.à.r.l., Ville de Luxembourg
 

6-7	Remise en valeur du site Mansfeld et des
vestiges à Clausen
Concours
Administration Communale de la Ville de Luxembourg Clausen 6-7 Remise en valeur du site Mansfeld et des
vestiges à Clausen
Concours
Administration Communale de la Ville de Luxembourg Clausen
 


 

8	PAP”Hiel” à Moutfort
En collaboration avec Best ingénieurs-conseils
Kuhn S.A.
Moutfort 8 PAP”Hiel” à Moutfort
En collaboration avec Best ingénieurs-conseils
Kuhn S.A.
Moutfort
 

9	Etude architecturale et urbanistique pour la réalisation des écoles fondamentales du Laangfur
Administration des bâtiments publics et Ville de Luxembourg, Kirchberg 9 Etude architecturale et urbanistique pour la réalisation des écoles fondamentales du Laangfur
Administration des bâtiments publics et Ville de Luxembourg, Kirchberg
 

10	PAP An der ‘‘Soibelkaul’’
BPI et ION, Dudelange 10 PAP An der ‘‘Soibelkaul’’
BPI et ION, Dudelange
 

11	Maisons/résidences, rue Sainte-Anne et rue de l’église à Wellenstein
Lauréat concours
Fonds du logement, Schengen 11 Maisons/résidences, rue Sainte-Anne et rue de l’église à Wellenstein
Lauréat concours
Fonds du logement, Schengen