9b, Plateau Altmünster
L-1123 LUXEMBOURG
T 00352 / 26 20 60
F 00352 / 26 20 60 40
info@a-a.lu
www.a-a.lu
Bertrand Schmit, architecte
Nadine Gutenstein, architecte
Hermann Esslinger, architecte-urbaniste
Michael Gissler, architecte
Fondé en 1960 par René Schmit, notre bureau s’est développé et propose aujourd’hui les services d’une équipe internationale, rassemblant des spécialistes de divers domaines de l’environnement bâti au sens large, depuis l’aménagement du territoire et jusqu’au détail d’architecture d’intérieur.
36 personnes dont 4 architectes associés
et 32 collaborateurs architectes, architectes d’intérieur, urbanistes, techniciens, dessinateurs
Architecture
Architecture d’intérieur | Design
Urbanisme | Masterplanning | PAG PAP SUP
Experts assermentés
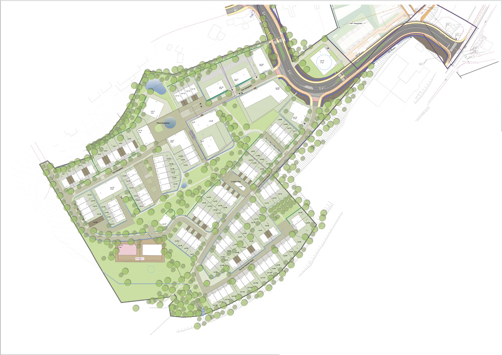
1 PAP Haargarten
2 PAP Rue des Ligures
3 Concours Place de la Constitution
4 Concours Wunnquartier
5 PAP Äerdbier
1 PAP Haargarten
2 PAP Rue des Ligures
3 Concours Place de la Constitution
4 Concours Wunnquartier
5 PAP Äerdbier